Restaurante Pedro Roca

Cerca del casco histórico de Santiago de Compostela, tras una discreta puerta de acceso, se esconde un restaurante de pocos metros cuadrados con un interior aparentemente sencillo pero a la vez lleno de matices. Se trata del restaurante Pedro Roca, considerado uno de los mejores de la ciudad. La comida es espectacular, aún siento en mi paladar los exquisitos sabores derivado de los platos gallegos preparados con la mejor materia prima de la zona.

Restaurante-Pedro-Roca_7

El interiorismo lleva la firma del estudio de arquitectura Gallego Arrokabe, que han sabido sacar partido de un espacio que presentaba imnumerables condicionantes arquitectónicos.

Restaurante-Pedro-Roca_14

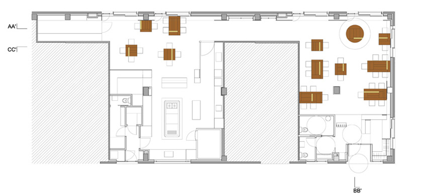
El programa de necesidades es bastante reducido, se compone de zona de comedor, cocina, bodega, servicios y zona de recepción.

Restaurante-Pedro-Roca_9

La cocina es, sin duda alguna, la gran protagonista. Ocupa gran parte del restaurante y se abre completamente a uno de los salones, estableciendo así, una comunicación directa entre cocinero y cliente. Uno se siente, verdaderamente, como si estuviera comiendo en su propia casa.

Restaurante-Pedro-Roca_11

Restaurante-Pedro-Roca_12

En la zona del comedor, compuesto por dos salones separados, lo que me ha llamado mucha la atención fue el tratamiento diferenciado del falso techo y el revestimiento perimetral interior del cerramiento de la fachada. Para el techo, los arquitectos han utilizado unas finas laminas de madera sujetas a una estructura metálica, mientras que el cerramiento interior se trata de un trasdosado formado por tablones de madera de pino sin cepillar que, en los huecos, se transforma en contraventanas correderas.

Restaurante-Pedro-Roca_6

Restaurante-Pedro-Roca_15

De esta forma, además de reforzar la continuidad espacial del comedor, se contribuye a mejorar notablemente el acondicionamiento acústico y térmico y se elimina una referencia tan directa a la rígida composición exterior de huecos. Las múltiples variables de las contraventanas permiten controlar las vistas hacía al exterior, así como la entrada de iluminación natural produciendo un efecto de luz y sombras muy agradable.

Restaurante-Pedro-Roca_5

Restaurante-Pedro-Roca_4

En la zona de la entrada, se ubica un pequeño vestíbulo delimitado por una barra de servicio, un mueble de apoyo y los aseos. Se origina así, un tamiz entre la recepción y el resto del local.

Restaurante-Pedro-Roca_3

Restaurante-Pedro-Roca_13

La madera aparece por todos lados, en el revestimiento del suelo, paredes, ventanas y mobiliario. En algunos puntos del restaurante, se combina este material con grises y verdes grisáceos, que unidos a la iluminación natural tamizada por las contraventanas y las luminarias suspendidas orientadas sobre las mesas, crean una atmósfera relajante y agradable.

Restaurante-Pedro-Roca

Restaurante-Pedro-Roca_2

Restaurante-Pedro-Roca_12

En cualquier restaurante, sobre todo en los que ofrecen una cocina de autor, no hay que olvidar que los protagonistas siempre son los platos, la arquitectura se queda en un segundo plano, como un envoltorio que no compite, simplemente potencia y pone de manifiesto los extravagantes sabores de la cocina.

firmas

Referencia fotográfica: Bernardo Diéguez, Fuco Reyes, restaurante Pedro Roca, Arrokabe, Veredes

Un comentario sobre “Restaurante Pedro Roca

  1. Bonito restaunat donde se conbina la sencillez lo atrevido y de un ambiente acogedor y si lo sumas que la comida es esquisita pues mi querida Ana sera parte de mi visita cuando vaya a Santiago de compostela. Muchas gracias por el articulo que como siempre con tu forma tan caracteristica de transportarnos a todos los lugares de este mundo, muchas gracias repito y un abrazo.

Deja un comentario